上尾市浅間台3期 新築戸建て 埼玉県上尾市浅間台3丁目|4,099万円の新築一戸建て|ララハウス株式会社大宮支店
| 価格 | 4,099万円値下がり ![]() |
||||
|---|---|---|---|---|---|
| 所在地 | 埼玉県上尾市浅間台3丁目
この地域周辺の物件を見る |
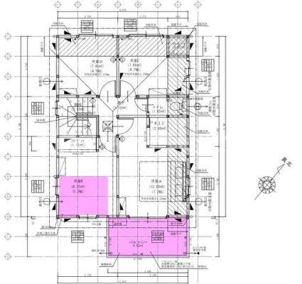
土地面積 | 100.2m² (30.31坪) | 建物面積 | 99.36u |
| 築年月 | 2026年5月築 | 間取り | 4LDK (-) | ||
| 交通 |
JR高崎線 北上尾 徒歩17分
JR高崎線 上尾 徒歩23分 |
||||
| 特徴 |
|
|---|---|
| セールスコメント | 【POINT】 〇敷地面積100.20m2(約30.31坪) ○ベルク徒歩11分・ウェルシア・ローソン徒歩7分♪ お買い物便利な環境が整っています☆ ○大石小学校徒歩18分・大石中学校徒歩10分! 朝夕の部活の帰りも安心です♪ 〇浅間台大公園徒歩2分☆ 休日は散歩したり広々と遊べます☆ ■【0120-22-8282】へお気軽にお問い合わせください■ ■【ララハウス 大宮支店】で検索♪ 最新情報を毎日更新中です! 弊社ホームページをご利用くださいませ☆☆ |
| 採光面 | 東南 | 構造/階数 | 木造/地上2階建 |
|---|---|---|---|
| 建ぺい率 | 60(%) | 容積率 | 200(%) |
| 駐車場 | - | 現況/引渡し | -/相談 |
| 土地権利 | 所有権 | 私道負担面積 | - |
| 接道状況 | 接道: 東南 公道 道路幅: 5.9m | 用途地域 |
第二種住居地域
|
| セットバック | なし | 法令上の制限 | - |
| 地目 | 宅地 | 地勢 | |
| 建築確認番号 | 第25UDI1W建号 | 都市計画 | 市街化区域 |
| 取引態様 | 仲介 | ||
| 情報更新日 | 2026年05月19日 | 次回更新日 | 2026年06月02日 |
| 小学校区 | 上尾市立西小学校 (埼玉県上尾市) この学区の他の物件を見る |
中学校区 | 大石中学校 (埼玉県上尾市) この学区の他の物件を見る |
|---|
| 価格 | 万円 | ||
|---|---|---|---|
| 年利率 | % |
||
| ボーナス払い | 返済年数 | ||
| 頭金 | 直接入力する | 万円 | |

毎月のご返済額 |
ボーナス(×年2回) |
物件価格4,099万円 |
◆北上尾駅徒歩18分・自転車6分!
◆4LDK・南東向き・陽当たり良好♪
◆ベルク徒歩11分・ウェルシア・ローソン徒歩7分♪
◆浅間台大公園徒歩2分!