洋伸大宮マンション 埼玉県さいたま市大宮区三橋1丁目|1,999万円の中古マンション|分譲住宅や新築物件|ララハウス株式会社大宮支店
| 価格 | 1,999万円値下がり ![]() |
||||
|---|---|---|---|---|---|
| 所在地 | 埼玉県さいたま市大宮区三橋1丁目
この地域周辺の物件を見る |
専有面積 | 65.33u | 築年月 | 1983年6月築 |
| 交通 |
JR京浜東北・根岸線 大宮 バス14分 三橋一丁目 停歩4分
JR高崎線 大宮 バス14分 三橋一丁目 停歩4分 |
管理費等 | 8,500円 | 修繕積立金 | 21,490円 | 所在階/階数 | 3階/地上10階建 | バルコニー面積 | 8.33m² |
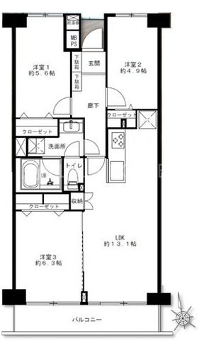
| 間取り | 3LDK (LDK13.1/洋室5.6/洋室4.9/洋室6.3) | ||||
| 特徴 |
|
|---|---|
| セールスコメント | ◆随時現地へのご案内受付中です♪ 「いまから見たい!」など、当日のご連絡も大歓迎です! ◆ご希望の条件を遠慮なくお話し下さい。 ララハウスのホームページをご覧ください。 「ララハウス大宮支店」で検索! ◆【0120-22-8282】へお気軽にお問い合わせください。 ◆電車でお越しの方、現地までの行き方が不安という方、 ご希望ございましたら付近までお迎えにあがります。 お気軽にご相談くださいませ。 最新情報を毎日更新中です! 弊社ホームページをご利用くださいませ☆ |
| 採光面 | 南西 | 取引態様 | 仲介 |
|---|---|---|---|
| 現況 | 空家 | 引渡し | 即時 |
| 総戸数 | 123戸 | 構造 | SRC造 |
| テラス面積 | - | 専用庭面積 | - |
| 駐車場 | - | 駐輪場 | - |
| 建物権利 | - | 土地権利 | 所有権 |
| 用途地域 | 第二種中高層住居専用地域 - - | 管理態様 | 管理形態:委託(通勤) 管理組合:あり 管理会社:日本ハウズイング株式会社 |
| 情報更新日 | 2026年05月30日 | 次回更新日 | 2026年06月13日 |
| 小学校区 | さいたま市立三橋小学校 (埼玉県さいたま市) この学区の他の物件を見る |
中学校区 | 三橋中学校 (埼玉県さいたま市) この学区の他の物件を見る |
|---|
| 価格 | 万円 | ||
|---|---|---|---|
| 年利率 | % |
||
| ボーナス払い | 返済年数 | ||
| 頭金 | 直接入力する | 万円 | |

毎月のご返済額 |
ボーナス(×年2回) |
物件価格1,999万円 |
◆3LDK・南向き・3階・陽当り良好♪
◆新規リノベ済
◆全居室収納付き
◆大宮駅バス14分「三橋一丁目」停歩4分♪
◆新耐震基準マンション